





Beskrivning
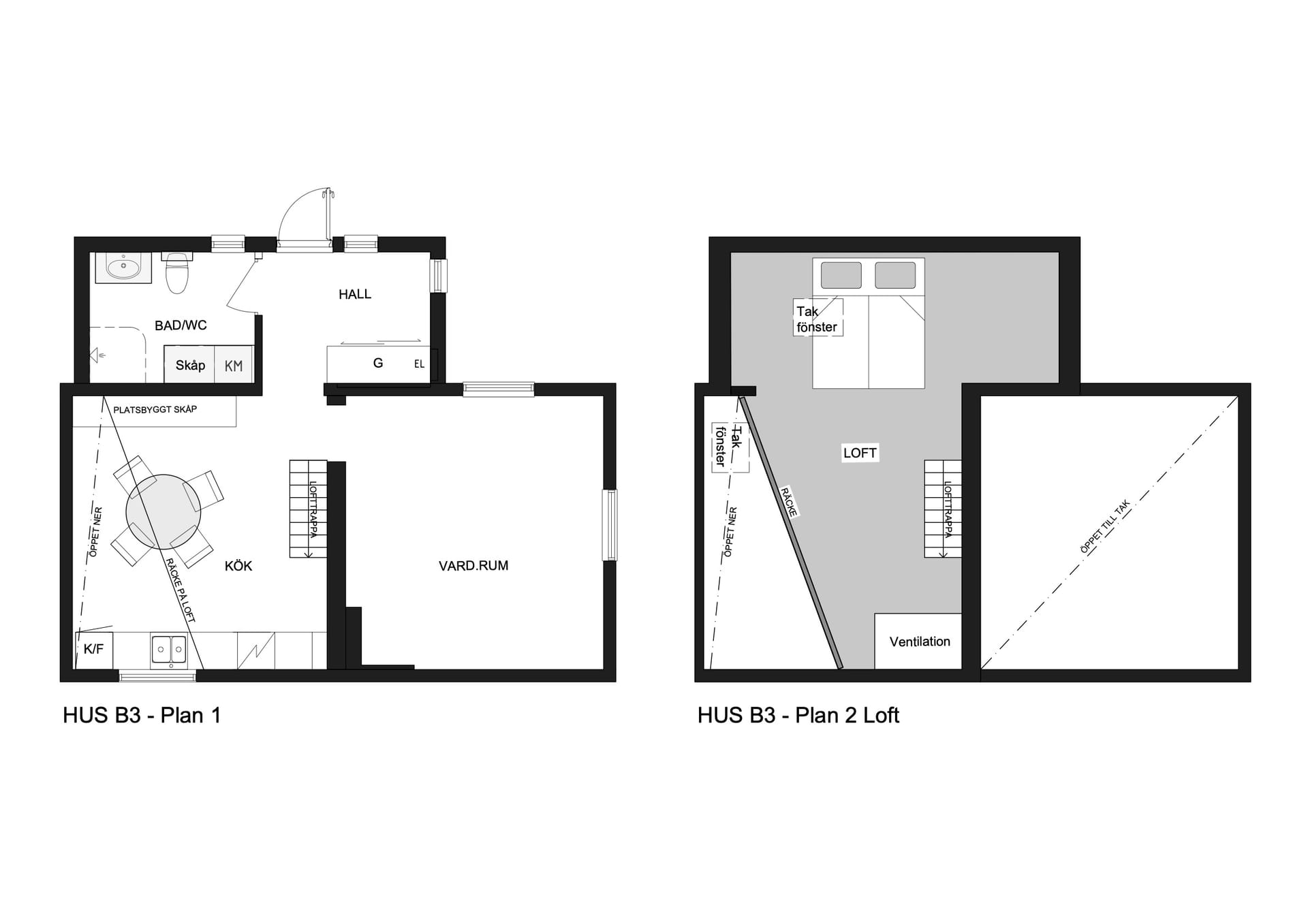
Charmig stadsvilla i centrala Södertälje – ca 65 m² med loft Välkommen till en trivsam och välplanerad stadsvilla med attraktivt centralt läge i Södertälje. Här bor du i en hemtrevlig bostad med smart disponerade ytor och en luftig känsla. Entréplanet erbjuder hall, kök, vardagsrum och badrum i en öppen och funktionell planlösning. En trappa upp finns ett mysigt sovloft på andra våningen som ger bostaden karaktär och extra rymd. Bostaden kombinerar närhet till stadens service, kommunikationer och utbud med en mer avskild och privat boendemiljö. Värme och vatten ingår i hyran. Runt villan finns ytor som kan nyttjas för exempelvis uteplats eller enklare odling, vilket ger möjlighet att sätta egen prägel. Hyresgästen ansvarar för skötsel av dessa ytor, inklusive gräsklippning, lövkrattning och eventuell snöröjning. En perfekt bostad för dig som söker något utöver det vanliga med både charm och funktion.