Brandmannagatan, Linköping
Lägenhet / 3 rum / 86 m²
Snarast 31 dec. 2026
11 800 kr
1 mån sedan
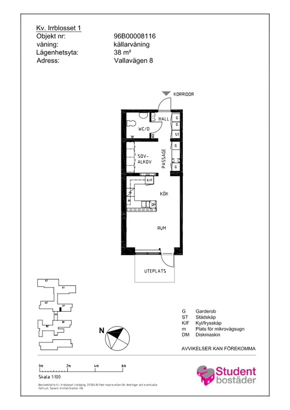
Hyr lägenhet på Vallavägen i Linköping. 2 rum på 38 m² för 8 970 kr/mån. Ansök direkt via Bofrid.
Utforska fler lediga bostäder att hyra i Linköping. Hitta liknande lägenheter, hus och rum med jämförbar hyra och storlek.


Hej! På grund av examensarbete utomlands hyr jag ut min 2:a i Irrblosset under januari, februari och mars (exakta datum enligt överrenskommelse). Om lägenheten: - 2:a på 38 kvm - Uteplats - Diskmaskin - Hyrs ut möblerad Hyran ligger på 8 970 kr/månad + deposition, inkl bredband el och varmvatten. Observera att eftersom det är en studentbostad behöver man vara student vid universitetet under hela hyresperioden för att vara aktuell som hyresgäst. Vid intresse eller frågor är det bara att höra av sig till mig!